Siirry sisältöön

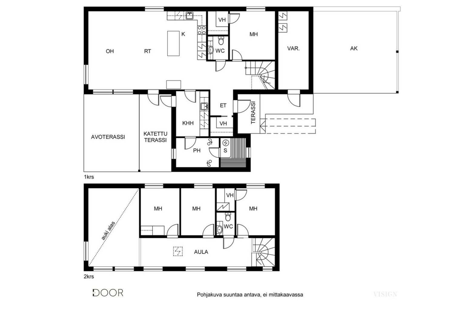
Omakotitalo 5h+k+khh+kph+s+ak+terassi

Kutojantie 25, Purola, Vaasa

Hinta
427 000 €

Koko
136.0 m²

Vuosi
2019

Modernia asumista valossa ja tilassa – tyylikäs koti Purolassa!

Tämä uudehko omakotitalo tarjoaa selkeää arkkitehtuuria, toimivaa arkea ja ennen kaikkea poikkeuksellisen hienoa tilantuntua. Suuret ikkunapinnat tuovat luonnonvalon osaksi sisustusta, ja korkea tila antaa kodille avaran ja rauhallisen ilmeen.

Olohuoneen ja keittiön muodostama yhtenäinen kokonaisuus toimii kodin sydämenä, jossa arki ja yhdessäolo kohtaavat luontevasti. Moderni keittiö yhdistyy ruokailutilaan ja oleskeluun, ja kokonaisuus jatkuu sujuvasti ulos lasitetulle terassille.

Kodin käytännöllisyys näkyy toimivissa tilaratkaisuissa, jotka tukevat sujuvaa arkea myös pidemmällä aikavälillä. Autokatos kahdelle autolle sekä tilava lämmin varasto tuovat arkeen helppoutta, ja maalämpö yhdessä viilennyksen kanssa lisää asumismukavuutta ympäri vuoden.

Piha-alue on suunniteltu helppohoitoiseksi, joten aikaa jää enemmän asumiseen ja yhdessäoloon kuin ylläpitoon.

Purola on rauhallinen ja viihtyisä asuinalue, jossa arki toimii. Palvelut ovat kätevän matkan päässä ja Vaasan keskustaan kulkee nopeasti, mutta kotiin palatessa ympäristö on selkeästi rauhallisempi ja suojaisampi. Alue tarjoaa hyvät mahdollisuudet ulkoiluun ja liikkumiseen.

Harkittu ja valmis kokonaisuus, jossa yhdistyvät moderni ilme, toimiva pohja ja viihtyisä asuminen.
Tämä koti on nähtävä paikan päällä!

Lisätiedot ja esittely, joka järjestetään sovitusti – ilmoittaudu etukäteen, niin saat tarkemmat tiedot ja ajankohdan: marjo@doorlkv.fi / 0400 330 649

Yhteystiedot
  • Marjo Huhmarsalo
  • Door LKV
  • marjo@doorlkv.fi
  • 0400330649
Marjo Huhmarsalo

Kohdenumero21767505
Sijainti
  • Purola
  • Kutojantie 25
  • 65300
  • Vaasa
TyyppiOmakotitalo
Huoneistoselitelmä5h+k+khh+kph+s+ak+terassi
Asuinpinta-ala m²136 m²
Yhteensä m²147 m²
Lisätietoja pinta-alastaKerrosala 179m²
Kerros1
Kerroksia2
Rakennusvuosi (päättynyt)2019
Käyttöönottovuosi2019
Vapautuminen1.7.2026

Velaton hinta427 000 €
Myyntihinta427 000 €
Kiinteistövero830,00 €
Lisätietoja maksuistaJäte- ja hulemaksut n.50€/kk. kokonaissähkön kulutus n. 10500kwh/v + sähköauton lataus n.7900kwh/v. Varainsiirtovero 3% sekä mahdollinen sähköisen asuntokaupan kustannus eli DIAS – digitaalinen asuntokauppa.

Sauna
  • oma sauna
Asuntoon kuuluu
  • kaapeli-tv
YleiskuntoHyvä
EnergialuokkaB2018
Lämmitysjärjestelmän kuvausMaalämpö

Asunnon tilat ja materiaalit
  • Pääasiallinen rakennusmateriaali: puu
Katto
  • Pulpettikatto
  • Pelti
Keittiön kuvaus
  • Lattiamateriaalit: laminaatti
  • Seinämateriaalit: maalattu
  • Työtaso: laminaatti
  • Varusteet: liesituuletin, astianpesukone, irralliset kaapistot
  • Liesi: induktioliesi, erillisuuni
  • Jääkaappi ja pakastin: jääkaappi, pakastin
Kylpyhuoneen kuvaus
  • Lattiamateriaalit: laatta
  • Seinämateriaalit: kaakeli
  • Varusteet: suihku
WC-tilojen kuvaus
  • Lukumäärä:2
  • Lattiamateriaalit: laatta
  • Seinämateriaalit: maalattu
  • Varusteet: lattiakaivo, bidee-suihku
Saunan kuvaus
  • Lattiamateriaalit: laatta
  • Seinämateriaalit: puu
Kodinhoitohuoneen kuvaus
  • Lattiamateriaalit: laatta
  • Seinämateriaalit: maalattu
  • Varusteet: pesukoneliitäntä, pesuallas, lattiakaivo
Olohuoneen kuvaus
  • Lattiamateriaalit: laminaatti
  • Seinämateriaalit: maalattu
Makuuhuoneiden kuvaus
  • Lukumäärä: 4
  • Lattiamateriaalit: laminaatti
  • Seinämateriaalit: maalattu, tapetti
Säilytystilojen kuvaus ja lisätiedotLämmin ulkovarasto

Kiinteistötunnus/laitostunnus90502300780008
EnergialuokkaB2018
Tontin pinta-ala900 m²
Tontin omistusOma
Lisätietoja rakennusoikeudesta180+60