Siirry sisältöön

Omakotitalo 5h+k+kph+s+terassi+ak/varasto

Paukekuja 11, Sundom, Vaasa

Hinta
339 000 €

Koko
115.0 m²

Vuosi
2026

TOTEUTA HAAVEESI – MODERNI UUDISKOHDE SUOSITULLA SUNDOMIN BJÖRSINKALLIOLLA

Paukekuja 11 rauhalliselle ja luonnonläheiselle tontille on laadittu valmiit suunnitelmat omakotitalolle sekä vaihtoehtoisesti paritalolle. Näiden pohjalta voidaan toteuttaa juuri sinun tarpeisiisi sopiva kokonaisuus. Kohde on nyt ennakkomarkkinoinnissa, joten sinulla on erinomainen mahdollisuus päästä mukaan suunnitteluun jo varhaisessa vaiheessa. Tontille on suunniteltu vaihtoehtoisesti omakotitalo tai paritalo, ja toteutettava ratkaisu valitaan kiinnostuneen ostajan kanssa.

Rakentajana toimii paikallinen Masacon Oy, joka tunnetaan huolellisesta työnjäljestä ja selkeästä, asiakaslähtöisestä toteutustavastaan. Ostajana voit vaikuttaa ratkaisuihin ja materiaaleihin joiden perusteella rakentaja laatii päivitetyn tarjouksen, niin kokonaisuus pysyy läpinäkyvänä ja hallittuna alusta loppuun.

Sundom on pidetty asuinalue ja tarjoaa luonnonrauhaa, vehreät ulkoilumaastot ja viihtyisän ympäristön asumiseen, samalla kun yhteydet keskustaan ja palveluihin ovat sujuvat. Länteen suuntautuva piha luo hyvät puitteet oleskeluun ja vapaa-aikaan.

Suunnitellussa kodissa yhdistyvät moderni tyyli, valoisat tilaratkaisut ja energiatehokas toteutus – koti, joka toimii arjessa ja kestää aikaa.

Ota rohkeasti yhteyttä, niin käydään yhdessä läpi kohteen tarkemmat suunnitelmat, rakennustapaseloste sekä projektin aikataulu ja eteneminen.

Marjo / DOOR LKV
0400 330 649 / marjo@doorlkv.fi

PS. Rakentajan rakentamia kohteita nähtävissä Gerbyssä, Vetokankaalla, Länsiniityssä sekä Sundomin Björsinkalliolla, jossa myös tällä hetkellä moderni paritalo viimeistä vaille valmis.

Yhteystiedot
  • Marjo Huhmarsalo
  • Door LKV
  • marjo@doorlkv.fi
  • 0400330649
Marjo Huhmarsalo

Kohdenumero20269539
Sijainti
  • Sundom
  • Paukekuja 11
  • 65410
  • Vaasa
TyyppiOmakotitalo
OmistusmuotoOma
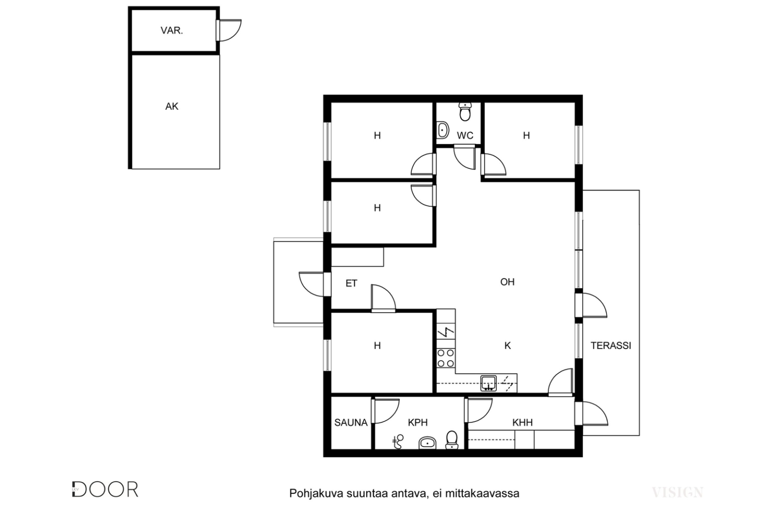
Huoneistoselitelmä5h+k+kph+s+terassi+ak/varasto
Asuinpinta-ala m²115 m²
Yhteensä m²115 m²
Kerros1
Kerroksia1
Rakennusvuosi (päättynyt)2026
Käyttöönottovuosi2027
VapautuminenUUDISKOHDE

Velaton hinta339 000 €
Myyntihinta339 000 €
Lisätietoja maksuistaKustannukset tarkentuvat kun kohde valmis.

YleiskuntoUusi
Lisätietoa kunnostaUUDISKOHDE
EnergialuokkaA2018
Lämmitysjärjestelmän kuvausMaalämpö

Asunnon tilat ja materiaalit
  • Pääasiallinen rakennusmateriaali: puu
Katto
  • Pulpettikatto
  • Pelti

Kiinteistötunnus/laitostunnus905-50-23-10
EnergialuokkaA2018
Tontin pinta-ala980 m²
Tontin omistusVuokrattu
Tontin VuokranantajaVaasan kaupunki
Tontin vuokra2 237,34 €
Lisätietoa kaavoituksestaVaasan kaupunki 06 325 1111